2 pièces appartement dans Montelimar
-
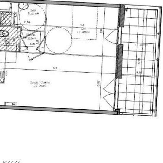
Surface
- 45 m²
-
Type de propriété
- Appartement
-
Pièces
- 2 pièces
A48 CARRE D'OR - COEUR MONTELIMAR - A SAISIR T2 AU DERNIER ETAGE AVEC SUP TERRASSE DE 11M2 EXPO SUD DANS UNE RESIDENCE RECENTE (2014) DE STANDING BBC - AU CALME - Magnifique séjour et cuisine US équipée (frigo et plaques) de 27m2, une chambre en sol parquet, SDE aménagée, parking privatif en sous sol sécurisé. Chauffage + eau chaude et froide inclus dans les charges. Consommation d'énergie totale entre 410 EUR et 590 EUR par an (prix moyens des énergies indexés sur les années 2021,2022,2023). Les informations sur les risques auxquels ce bien...
- Louer
- 500 € par mois
- Ville
- 26200, Montelimar
- Durée de location
- -
- Propriétaire vérifié
- Oui
- Date
- Hier
- Disponible
- Contacter le propriétaire
- Services
- 109 €
- Dépôt de garantie
- 500 €
- Avance sur loyer
- Contacter le propriétaire
Emplacement