2 pièces appartement dans Talence
-
Surface
- 60 m²
-
Type de propriété
- Appartement
-
Pièces
- 2 pièces
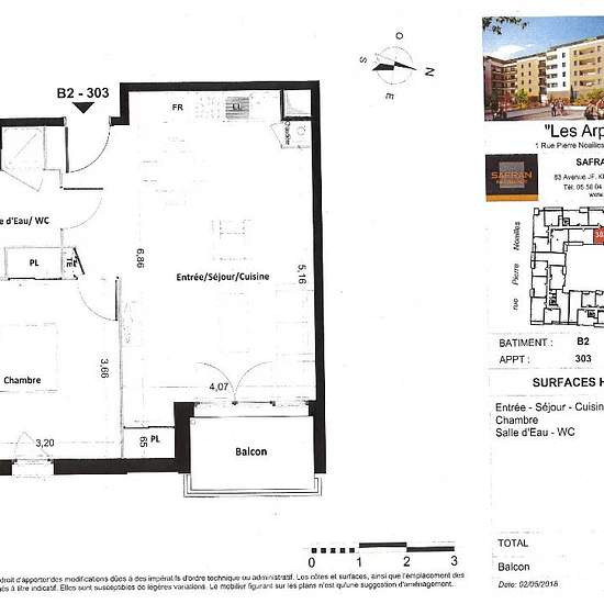
TALENCE : 19 rue Pierre Noailles. Au pied du tram et des commerces, venez découvrir dans une résidence BBC de standing ce magnifique T2 de 47.05m² avec balcon. L'appartement comprend un séjour avec cuisine équipée (plaque de cuisson et hotte), une chambre avec placard, une salle d'eau avec WC. Il dispose également d'une place de parking sécurisée en sous-sol. Disponible à compter du 13 décembre 2025. Loyer: 760.40€ CC (les charges comprennent l'entretien des communs) Dépôt de garantie : 710.40€ Honoraires : 611.65€ dont 141.15€ pour l'état d...
- Louer
- 710 € par mois
- Ville
- 33400, Talence
- Durée de location
- -
- Propriétaire vérifié
- Oui
- Date
- Hier
- Disponible
- Contacter le propriétaire
- Services
- Contacter le propriétaire
- Dépôt de garantie
- Contacter le propriétaire
- Avance sur loyer
- Contacter le propriétaire
Emplacement