5 pièces appartement dans St ouen sur seine
-
Surface
- 150 m²
-
Type de propriété
- Appartement
-
Pièces
- 5 pièces
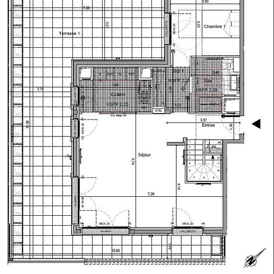
Dans une très belle résidence neuve de standing avec gardien et proposant des services innovants tels que des boites à colis connectées, nous vous proposons à la location cet appartement de 5 pièces en duplex avec terrasses. Situé au 7ème étage avec ascenseur, cet appartement de 122,40 m² se compose : Au premier niveau d’une entrée avec placard, d’une cuisine aménagée et semi-équipée (plaques de cuisson à induction et hotte) , d'un spacieux séjour donnant sur une première terrasse, d'une suite parentale avec une salle d'eau et d'un WC indépe...
- Louer
- 3 235 € par mois
- Ville
- 93400, St ouen sur seine
- Durée de location
- -
- Propriétaire vérifié
- Oui
- Date
- Il y a 32 jours
- Disponible
- Contacter le propriétaire
- Services
- Contacter le propriétaire
- Dépôt de garantie
- Contacter le propriétaire
- Avance sur loyer
- Contacter le propriétaire
Emplacement