2 room apartment in Albertville
-
Area
- 42 m²
-
Property type
- Apartment
-
Rooms
- 2 rooms
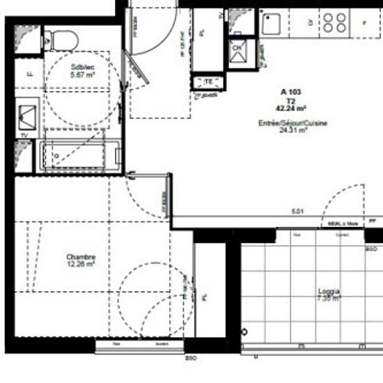
A103 OXYGENE - AU COEUR D'UNE RESIDENCE NEUVE DE STANDING A FAIBLE CONSOMMATION ENERGETIQUE BEAU T2 DE 42M² AVEC BALCON AVEC VUE DEGAGEE. Il est composé d'une pièce de vie, une cuisine US équipée (hotte, plaques vitro, four, meubles haut et bas), donnant accès au balcon, une chambre en sol parquet avec placards, une salle de bain aménagée avec meuble sous vasque et sèche serviette. Une place de parking en sous-sol. Chauffage individuel gaz. Visiophone. Consommation d'énergie totale entre 390-590EUR par an (prix moyens des énergies indexés au...
- Rent
- €700 per month
- Location
- 73200, Albertville
- Rental period
- -
- Verified landlord
- Yes
- Date
- Today
- Available
- Contact landlord
- Utilities
- €75
- Deposit
- €655
- Prepaid rent
- Contact landlord
Location