1 room apartment in Albertville
-
Area
- 32 m²
-
Property type
- Apartment
-
Rooms
- 1 room
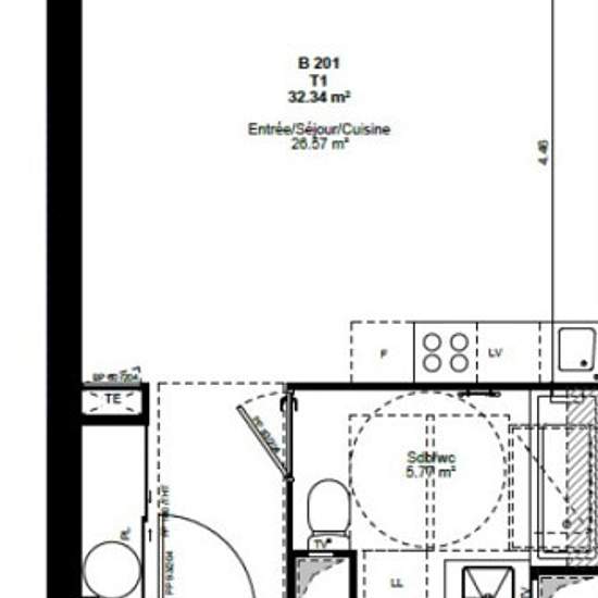
B201 OXYGENE - A SAISIR BEAU T1 DE 32M² DANS UNE RESIDENCE NEUVE BBC DE STANDING, L'appartement est composé d'une belle pièce de vie, un coin nuit, cuisine équipée et aménagée (meubles haut et bas et plaque de cuisson), une salle de bain aménagée et sèche serviette. Une place de parking en sous-sol. Chauffage individuel gaz. Visiophone. Consommation d'énergie totale entre 460-670EUR par an (prix moyens des énergies indexés au 2021.2022.2023). Les informations sur les risques auxquels ce bien est exposé sont disponibles sur le site Géorisques...
- Rent
- €490 per month
- Location
- 73200, Albertville
- Rental period
- -
- Verified landlord
- Yes
- Date
- Today
- Available
- Contact landlord
- Utilities
- €60
- Deposit
- €470
- Prepaid rent
- Contact landlord
Location