1 room apartment in Albertville

Area
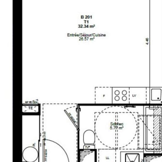
32 m²
Property type
Apartment
Rooms
1 room

B201 OXYGENE - A SAISIR BEAU T1 DE 32M² DANS UNE RESIDENCE NEUVE BBC DE STANDING, L'appartement est composé d'une belle pièce de vie, un coin nuit, cuisine équipée et aménagée (meubles haut et bas et plaque de cuisson), une salle de bain aménagée et sèche serviette. Une place de parking en sous-sol. Chauffage individuel gaz. Visiophone. Consommation d'énergie totale entre 460-670EUR par an (prix moyens des énergies indexés au 2021.2022.2023). Les informations sur les risques auxquels ce bien est exposé sont disponibles sur le site Géorisques...

Rent
€490 per month
Rental period
-
Verified landlord
Yes
Date
Today
Available
Contact landlord
Utilities
€60
Deposit
€470
Prepaid rent
Contact landlord
Location