1 room apartment in Auzeville tolosane

Area
20 m²
Property type
Apartment
Rooms
1 room

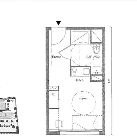
Possibilité de louer à des actifs et jeunes Actifs. Studio dans une résidence étudiante, à proximité de l'AGRI CAMPUS d'AUZEVILLE, de l'INRA, de l'ENSAT et à quelques minutes seulement du complexe universitaire de RANGUEIL. Visite virtuelle sur notre site ELYADE (Réf:21289) Il est composé d'une entrée, séjour avec cuisine équipée (évier inox, plaque 2 feux, hotte, meubles hauts et bas, frigo top), salle d'eau aménagée avec WC, un cellier. Pour vous assurer le confort et la qualité de vie, vous trouverez à votre disposition une laverie, un...

Rent
€272 per month
Rental period
-
Verified landlord
Yes
Date
Today
Available
Contact landlord
Utilities
€65
Deposit
€272
Prepaid rent
Contact landlord
Location