1 room apartment in Fontenay aux roses
-
Area
- 30 m²
-
Property type
- Apartment
-
Rooms
- 1 room
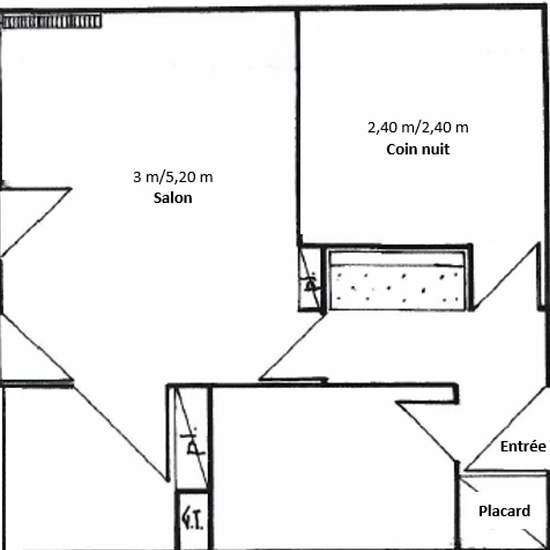
Un studio au 2ème étage d'une résidence calme comprenant : entrée, pièce principale avec un coin nuit, kitchenette, salle de bains avec WC, placard, balcon sur façade postérieure. Cave en sous-sol. Logement sous assurance garantie des loyers umpayés, revenus minimum : 2 660 €/mois Les informations sur les risques auxquels ce bien est exposé sont disponibles sur le site Géorisques :
- Rent
- €900 per month
- Location
- 92260, Fontenay aux roses
- Rental period
- -
- Verified landlord
- Yes
- Date
- Today
- Available
- Contact landlord
- Utilities
- €50
- Deposit
- €900
- Prepaid rent
- Contact landlord
Location