
1 room apartment in Le blanc mesnil
-
Area
- 27 m²
-
Property type
- Apartment
-
Rooms
- 1 room
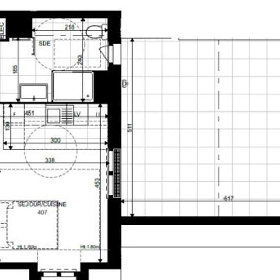
407 L'ABSOLU : RARE T1 AVEC TERRASSE DE 31 M² UNE VÉRITABLE BULLE D'AIR Un bien d'exception pour ce superbe T1 de 27,84 m² prolongé par une incroyable terrasse de 31 m², sans vis-à-vis, offrant une vue dégagée et un confort de vie incomparable. Situé au dernier étage, il se distingue par sa luminosité et son atmosphère paisible. La pièce principale accueille une cuisine moderne équipée (plaques vitro, hotte, four, rangements). Salle d'eau élégante avec meuble vasque et sèche-serviettes, parquet dans la pièce de vie. Ce logement est une vérit...
- Rent
- €790 per month
- Location
- 93150, Le blanc mesnil
- Rental period
- -
- Verified landlord
- Yes
- Date
- Today
- Available
- Contact landlord
- Utilities
- €110
- Deposit
- €790
- Prepaid rent
- Contact landlord
Location