1 room apartment in St jean d illac
-
Area
- 30 m²
-
Property type
- Apartment
-
Rooms
- 1 room
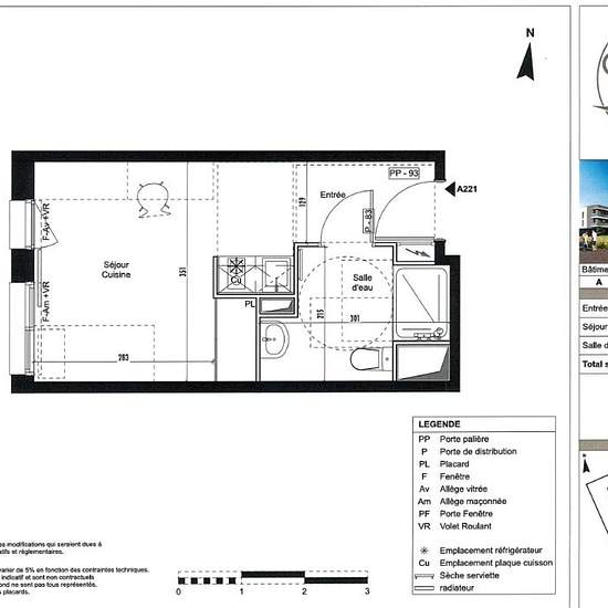
CAMPUS D'ILLAC, allée des dunes. Situé a proximité de l'école ELISA. Studio de 21.34m² qui comprend une pièce de vie avec cuisine ouverte et équipée (plaque de cuisson, hotte et frigo top) avec vue sur la forêt et une salle d'eau avec wc. Laverie automatique situé dans la résidence. Disponible dès maintenant. Loyer CC: 531.12€ (eau froide, eau chaude). Honoraires: 277.42 euros dont 64.02 euros pour l'état des lieux. Dépôt de garantie: 481.12€ infos et contact par téléphone: Ne ratez plus votre futur logement en vous abonnant à notre compte i...
- Rent
- €481 per month
- Location
- 33127, St jean d illac
- Rental period
- -
- Verified landlord
- Yes
- Date
- 2 days ago
- Available
- Contact landlord
- Utilities
- Contact landlord
- Deposit
- Contact landlord
- Prepaid rent
- Contact landlord
Location