1 room apartment in St ouen sur seine
-
Area
- 30 m²
-
Property type
- Apartment
-
Rooms
- 1 room
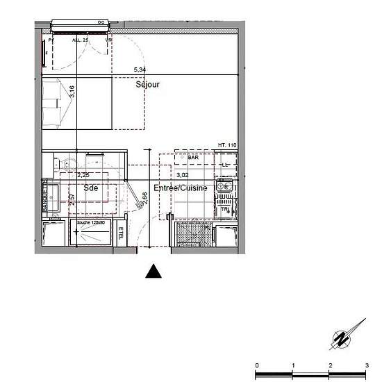
Dans une très belle résidence neuve de standing avec gardien et proposant des services innovants tels que des boites à colis connectées, nous vous proposons à la location ce studio Neuf. Situé au 1er étage avec ascenseur, cet appartement de 29,10 m² se compose : d’une pièce principale spacieuse avec placard et d'une cuisine aménagée et semi-équipée (plaques de cuisson à induction et hotte), d’une salle d'eau moderne équipée d'un sèche-serviette et d’un WC. Les charges incluent le chauffage, l’eau chaude sanitaire et l’eau froide. A proximité...
- Rent
- €756 per month
- Location
- 93400, St ouen sur seine
- Rental period
- -
- Verified landlord
- Yes
- Date
- 5 days ago
- Available
- Contact landlord
- Utilities
- Contact landlord
- Deposit
- Contact landlord
- Prepaid rent
- Contact landlord
Location