13 m² room in Villeneuve d ascq

Area
13 m²
Property type
Room
Rooms
1 room
Available now

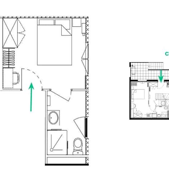
*These pictures are orientative, some variations are possible. This room is situated on the ground floor of a 3-story residence, which features a total of 5 rooms. Conveniently, the shared spaces, including the kitchen and living room, are located on the ground floor level. 140 cm bed • Ensuite bathroom • Shared kitchen Shared balcony/terrace 5 rooms in the appartment • Street window view EXTRA-SERVICES - Add Bedlinen and towels, changed weekly (not included with room) starting at €156.00/month - Bi-weekly cleaning of your private space star...

Rent
€735 per month
Rental period
Less than 12 months
Verified landlord
Yes
Date
6 days ago
Available
Available now
Utilities
Contact landlord
Deposit
€1,016
Prepaid rent
Contact landlord
Location