2 room apartment in Amboise
-
Area
- 50 m²
-
Property type
- Apartment
-
Rooms
- 2 rooms
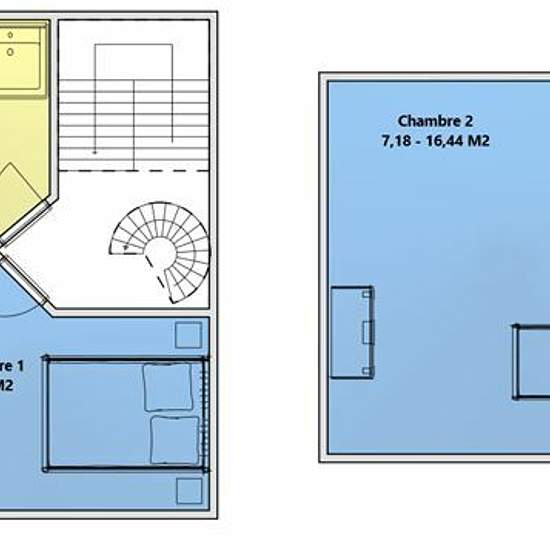
Avant de visiter = visite virtuelle 360° et dépot de dossier en ligne sur orpi. Com superbe t2 refait totalement à neuf, en coeur de ville et au calme. Avec une grande terrasse sans vis à vis. En rdc : grande pièce de vie lumineuse avec baie vitrée, donnant accès à la terrasse, espace cuisine moderne aménagée, wc. Au 1er étage : une chambre et sde. Au 2ème étage : un bureau. Chauffage et climatisation par pompe à chaleur. Libre de suite. Dpe c. Honoraires locataire offerts. Possibilité parking 40€ / mois en sus.
- Rent
- €755 per month
- Location
- 37400, Amboise
- Rental period
- -
- Verified landlord
- Yes
- Date
- 21 days ago
- Available
- Contact landlord
- Utilities
- Contact landlord
- Deposit
- €700
- Prepaid rent
- Contact landlord
Location