2 room apartment in Bagneux
-
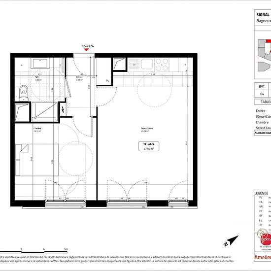
Area
- 48 m²
-
Property type
- Apartment
-
Rooms
- 2 rooms
Résidence neuve située au 8, rue Nina Simone à Bagneux, dans l'Ecoquartier Victor Hugo. Au pied du métro 4 Lucie Aubrac, à 15min à pied du RER B Arcueil Cachan et près du futur Métro 15 (bus et proximité A6 également). Proche des commerces et des écoles. A louer, appartement meublée F2 de 48 m², au 12ème étage, incluant une pièce à vivre, (cuisine ouverte et séjour), une chambre ainsi qu'une salle de douche avec WC. Loué sans parking. Chauffage collectif inclus dans les charges. Honoraires de 720 € TTC à la charge du locataire comprenant 576...
- Rent
- €1,450 per month
- Location
- 92220, Bagneux
- Rental period
- -
- Verified landlord
- Yes
- Date
- Yesterday
- Available
- Contact landlord
- Utilities
- Contact landlord
- Deposit
- Contact landlord
- Prepaid rent
- Contact landlord
Location