2 room apartment in Begles
-
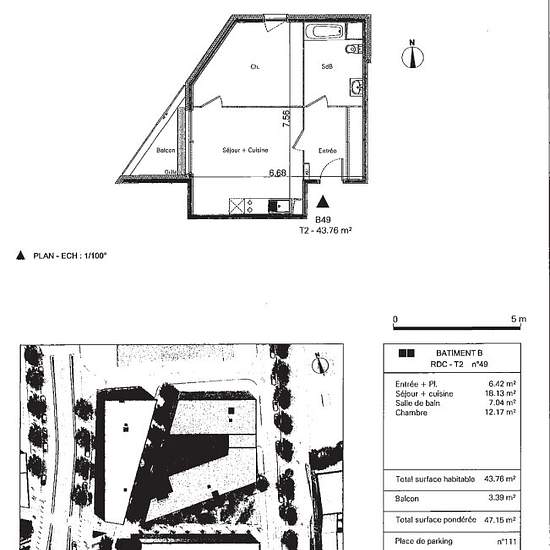
Area
- 44 m²
-
Property type
- Apartment
-
Rooms
- 2 rooms
La résidence bénéficie d'un emplacement privilégié, à seulement 7 minutes du centre de Bordeaux. Elle se situe à proximité des commerces et des écoles, et profite d'un accès direct au tramway au pied de l'immeuble. Nous vous proposons à la location cet appartement T2 . Il se compose d'une entrée avec placard, d'un séjour lumineux avec cuisine équipée (évier, plaque 2 feux, meubles hauts et bas), d'une chambre confortable, ainsi que d'une salle de bains aménagée avec WC. Ce logement dispose également d'un parking couvert et d'un ascenseur pou...
- Rent
- €570 per month
- Location
- 33130, Begles
- Rental period
- -
- Verified landlord
- Yes
- Date
- Today
- Available
- Contact landlord
- Utilities
- €70
- Deposit
- €570
- Prepaid rent
- Contact landlord
Location