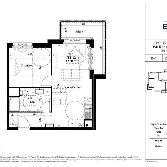
2 room apartment in Bourg achard

Area
43 m²
Property type
Apartment
Rooms
2 rooms

BOURG ACHARD - SECTEUR MAIRIE Dans une résidence neuve avec ascenseur, un appartement F2 comprenant : Un séjour avec balcon et rangement, espace cuisine aménagée (meubles hauts et bas, emplacement plaque, hotte, évier et 2 branchements machine), chambre, salle d'eau (douche, meuble vasque et wc). Chauffage et eau chaude individuel gaz - eau froide individuelle. Interphone. L'appartement dispose également d'une place de stationnement couverte. *Assurance habitation à 11.46 euros / mois.

Rent
€635 per month
Rental period
-
Verified landlord
Yes
Date
5 days ago
Available
Contact landlord
Utilities
Contact landlord
Deposit
Contact landlord
Prepaid rent
Contact landlord
Location