2 room apartment in Caen
-
Area
- 46 m²
-
Property type
- Apartment
-
Rooms
- 2 rooms
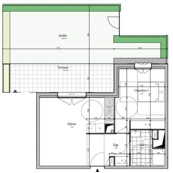
Appartement 2 pièces d'environ 45m² dans résidence neuve comprenant : entrée avec placard, séjour avec cuisine aménagée et équipée (plaque de cuisson et hotte) donnant sur jardin avec terrasse, chambre d'environ 14m², salle d'eau avec WC. Ce bien est complété par une place de parking privative en sous-sol. Eau froide, eau chaude et chauffage compris dans les charges. Soumis à plafond de ressources PINEL. Disponible le 01 Mars 2026. Les informations sur les risques auxquels ce bien est exposé sont disponibles sur le site Géorisques : Candidat...
- Rent
- €744 per month
- Location
- 14000, Caen
- Rental period
- -
- Verified landlord
- Yes
- Date
- 2 days ago
- Available
- Contact landlord
- Utilities
- Contact landlord
- Deposit
- Contact landlord
- Prepaid rent
- Contact landlord
Location