2 room apartment in Cergy
-
Area
- 40 m²
-
Property type
- Apartment
-
Rooms
- 2 rooms
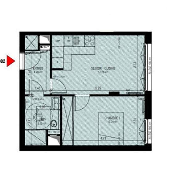
À LOUER – APPARTEMENT NEUF À CERGY Résidence « Les 3 Fontaines » – 11 avenue des 3 Fontaines, 95000 Cergy Venez découvrir cet appartement neuf de type T2 de 40,35 m² dans un cadre neuf et confortable. Situé au rez-de-chaussée, cet appartement comprend 1 chambre, une salle d'eau avec WC ainsi un séjour lumineux avec cuisine ouverte, créant un espace convivial. Une place de stationnement en sous-sol sécurisé complètent ce bien . Ce bien est équipé d'un chauffage et eau chauds collectifs au gaz et respectent les dernières normes énergétiques (R...
- Rent
- €842 per month
- Location
- 95000, Cergy
- Rental period
- -
- Verified landlord
- Yes
- Date
- Yesterday
- Available
- Contact landlord
- Utilities
- €179
- Deposit
- €842
- Prepaid rent
- Contact landlord
Location