2 room apartment in Colomiers
-
Area
- 38 m²
-
Property type
- Apartment
-
Rooms
- 2 rooms
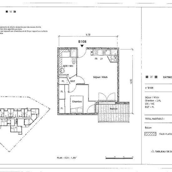
Située proche des transports en commun ( ligne 150 arrêt TUCOL à 33m), du centre ville et des commerces. Visite virtuelle sur notre site ELYADE (Réf:19757 ) Nous vous proposons cet appartement T2 situé au 1er étage composé d'un séjour avec cuisine équipée (évier inox, plaque 2 feux, frigo top, meubles hauts et bas) s'ouvrant sur un balcon de 6.23 m² d'une chambre avec placard,d'une salle d'eau avec wc. Le logement bénéficie d'un parking sous-sol. Louez un logement avec Elyade et bénéficiez gratuitement pendant 12 mois d'ALLOLILY, le service ...
- Rent
- €585 per month
- Location
- 31770, Colomiers
- Rental period
- -
- Verified landlord
- Yes
- Date
- 8 days ago
- Available
- Contact landlord
- Utilities
- Contact landlord
- Deposit
- Contact landlord
- Prepaid rent
- Contact landlord
Location