2 room apartment in Fonsorbes
-
Area
- 42 m²
-
Property type
- Apartment
-
Rooms
- 2 rooms
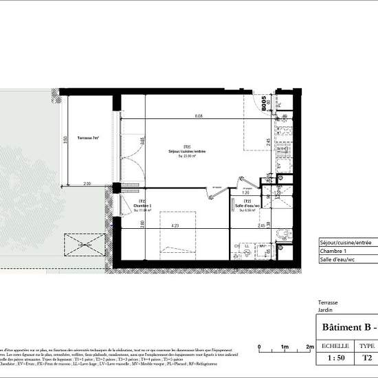
Venez découvrir cette résidence située au centre de Fonsorbes. Vous trouverez des commerces et services à moins de 600m de la résidence: Pharmacie, boulangerie, supermarché, restaurants, banques... La ligne de bus 116 et 315 sont a 85m de la résidence. Nous vous proposons un agréable T2 composé d'un séjour avec cuisine équipée (évier inox, meubles haut et bas , hotte aspirante électrique, plaque vitro céramique 2 feux, réfrigérateur top), d'une chambre, d'une salle d'eau aménagée avec WC, d'une terrasse de 7.00m² et d'un jardin de 36.46m² ....
- Rent
- €528 per month
- Location
- 31470, Fonsorbes
- Rental period
- -
- Verified landlord
- Yes
- Date
- 4 days ago
- Available
- Contact landlord
- Utilities
- €42
- Deposit
- €528
- Prepaid rent
- Contact landlord
Location