
2 room apartment in Gex
-
Area
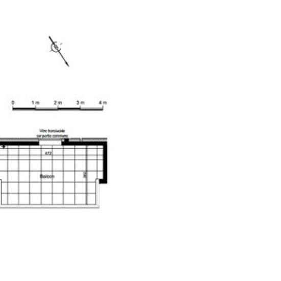
- 38 m²
-
Property type
- Apartment
-
Rooms
- 2 rooms
C201 LES BALCONS DU MONT BLANC - A VOIR ABSOLUMENT SUPERBE T2 CALME ET CLAIR DE 38 M² AVEC BALCON A L'INTERIEUR D'UNE RESIDENCE RECENTE DE STANDING A FAIBLE CONSOMMATION ENERGETIQUE. Il est composé d'un beau séjour de 22 m² avec cuisine US équipée (hotte, plaques vitro, four, meubles haut et bas). Une magnifique chambre sol parquet, une salle de bain aménagée avec meuble sous vasque et sèche serviette. Garage double fermé en sous-sol sécurisé. Chauffage gaz individuel. Visiophone. Consommation d'énergie totale 361EUR par an (prix moyens des ...
- Rent
- €808 per month
- Location
- 01170, Gex
- Rental period
- -
- Verified landlord
- Yes
- Date
- Today
- Available
- Contact landlord
- Utilities
- €104
- Deposit
- €724
- Prepaid rent
- Contact landlord
Location