2 room apartment in Houilles
-
Area
- 41 m²
-
Property type
- Apartment
-
Rooms
- 2 rooms
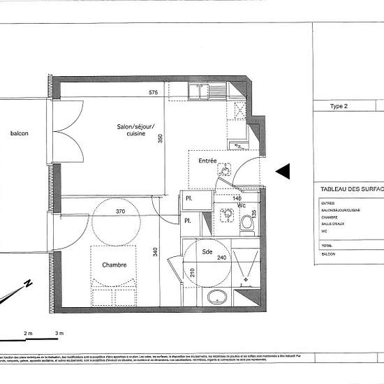
À découvrir : charmant T2 au coeur du quartier résidentiel de Richebourg, à seulement 10 minutes à vélo du RER A. Ce logement se compose d'une entrée accueillante, d'un séjour lumineux avec cuisine équipée (évier inox, plaque de cuisson, hotte, meubles hauts et bas), d'une chambre confortable, d'une salle d'eau aménagée et de WC séparés. Profitez également d'un balcon de 7,10 m² pour vos moments de détente. Une place de parking en sous-sol complète ce bien.
- Rent
- €780 per month
- Location
- 78800, Houilles
- Rental period
- -
- Verified landlord
- Yes
- Date
- 11 days ago
- Available
- Contact landlord
- Utilities
- €65
- Deposit
- €780
- Prepaid rent
- Contact landlord
Location