2 room apartment in Issy les moulineaux
-
Area
- 60 m²
-
Property type
- Apartment
-
Rooms
- 2 rooms
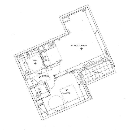
Loué : Promenade du Verger- Dans un immeuble 2013 de très bon standing, beau 2 pièces de 48,21 m2 , calme et lumineux, au 4ème étage avec ascenseur. Cet appartement comprend: une entrée, un séjour avec sa cuisine américaine aménagée (plaques de cuisson, placards, évier, hotte) de plain pied sur un balcon de 4 m2 , une chambre avec son dressing, une salle de bains, un WC indépendant. Prestations de qualités, parquet, stores électriques, domotique. Une place de parking au sous-sol. Chauffage et eau chaude collectifs. -Loyer mensuel de 1237 € C...
- Rent
- €1,135 per month
- Location
- 92130, Issy les moulineaux
- Rental period
- -
- Verified landlord
- Yes
- Date
- 11 days ago
- Available
- Contact landlord
- Utilities
- Contact landlord
- Deposit
- Contact landlord
- Prepaid rent
- Contact landlord
Location