2 room apartment in Jarny
-
Area
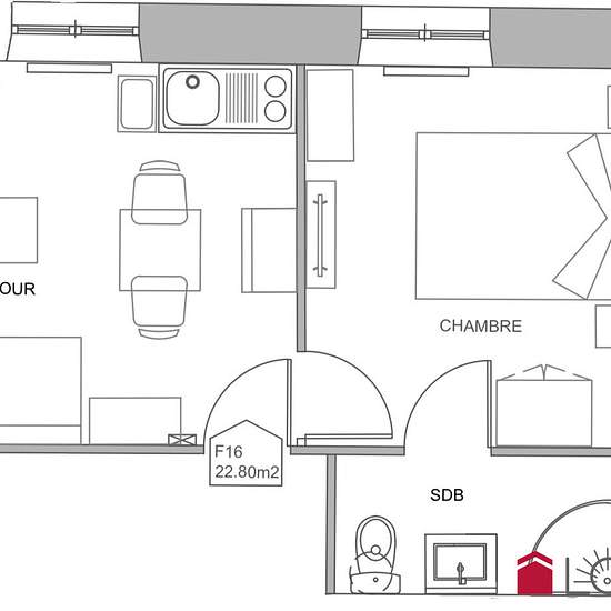
- 22 m²
-
Property type
- Apartment
-
Rooms
- 2 rooms
Nous ne sommes pas une agence immobilière il n'y a donc pas de frais d'agence, réservez en trois cliques votre appartement sur notre site internet, 42 logements sont à votre disposition. Daville Pro Immobilier vous propose ses logements disponibles à la nuit, à la semaine, au mois ou bien à l’année. Notre logement d’une superficie de 22 m2 situé au 1er étage peut accueillir 1 à 4 voyageurs. Il est composé de : - Une cuisinette comprenant une table et deux chaises, un réfrigérateur, un micro onde, une plaque de cuisson, une cafetière, des ust...
- Rent
- €850 per month
- Location
- 54800, Jarny
- Rental period
- -
- Verified landlord
- Yes
- Date
- 23 days ago
- Available
- Contact landlord
- Utilities
- Contact landlord
- Deposit
- Contact landlord
- Prepaid rent
- Contact landlord
Location