2 room apartment in Massy
-
Area
- 36 m²
-
Property type
- Apartment
-
Rooms
- 2 rooms
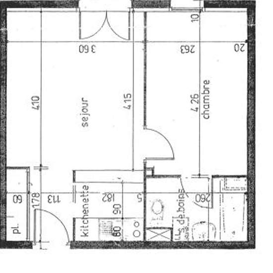
F2. Centre ville, proche gare RER B/C Massy-verrières, F2 dans petite résidence sécurisée comprenant: un séjour sur balcon, un coin cuisine, une chambre, salle d'eau avec W.C. Un parking sous-sol. 7 impasse de la Source 91300 MASSY. dispo: 13/11/2025
- Rent
- €785 per month
- Location
- 91300, Massy
- Rental period
- -
- Verified landlord
- Yes
- Date
- 14 days ago
- Available
- Contact landlord
- Utilities
- €83
- Deposit
- €785
- Prepaid rent
- Contact landlord
Location