2 room apartment in Mende
-
Area
- 50 m²
-
Property type
- Apartment
-
Rooms
- 2 rooms
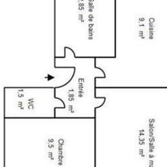
Appartement Mende 2 pièce(s). Libre. Proche centre ville de Mende. Appartement de type 2 situé au deuxième étage (sans ascenseur) d'une maison de ville comprenant trois autres logements. L'appartement comprend une cuisine indépendante non équipée, un salon, une salle de bains, un WC séparé et une chambre . Le logement comprend également une cave individuelle. Des places publiques sont à promité du logement. Les charges comprennent l'eau froide, les ordures ménagères, les communs . (Plus d'informations: / EMAIL
- Rent
- €422 per month
- Location
- 48000, Mende
- Rental period
- -
- Verified landlord
- Yes
- Date
- 29 days ago
- Available
- Contact landlord
- Utilities
- €38
- Deposit
- €422
- Prepaid rent
- Contact landlord
Location