2 room apartment in Nimes

Area
60 m²
Property type
Apartment
Rooms
2 rooms

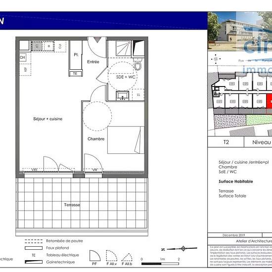
Appartement neuf 2 pièces avec terrasse et stationnement aux portes du centre-ville de Nîmes. Appartement idéalement situé à 5 minutes à pied de l'avenue Jean Jaurès, à 8 minutes en voiture de l'autoroute et à 10 minutes de la gare, arrêt de bus au pied de la résidence. Appartement neuf de type 2 de 41.60 m² au premier étage d'une résidence neuve et sécurisée comprenant une entrée avec placard, une pièce de vie avec cuisine aménagée et semi-équipée, une chambre avec placard, une salle d'eau avec WC. En annexe, une grande terrasse de 17.30 m²...

Rent
€561 per month
Location
30900, Nimes
Rental period
-
Verified landlord
Yes
Date
7 days ago
Available
Contact landlord
Utilities
Contact landlord
Deposit
Contact landlord
Prepaid rent
Contact landlord
Location