2 room apartment in Roubaix
-
Area
- 48 m²
-
Property type
- Apartment
-
Rooms
- 2 rooms
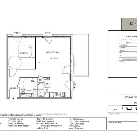
ROUBAIX Résidence neuve à proximité du Canal de Roubaix ,du centre-ville ,des commerces et des transports. Nous vous proposons cet agréable T2 situé au 1er étage. Il est composé d'un séjour avec cuisine équipée (évier inox - meubles hauts et bas - hotte - frigo table top - plaques vitrocéramiques 2 feux) donnant sur un Balcon de 8.38m², d'une chambre et d'une salle de bain aménagée avec WC. Le logement bénéficie d'une place de parking en extérieur. Les plus: - Emplacement priviligié - Arrêt de bus L 33/34/35/78/L4 et L3
- Rent
- €565 per month
- Location
- 59100, Roubaix
- Rental period
- -
- Verified landlord
- Yes
- Date
- Yesterday
- Available
- Contact landlord
- Utilities
- €55
- Deposit
- €565
- Prepaid rent
- Contact landlord
Location