2 room apartment in Rouen
-
Area
- 32 m²
-
Property type
- Apartment
-
Rooms
- 2 rooms
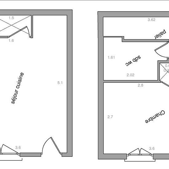
Référence du bien : CARP-FONT-1ER-LOT105 Le Cabinet Sauvage Gestion vous propose à la location un appartement non meublé de type f2 situé rue de Fontenelle à Rouen au 1er étage. Disponible dés le : 3 mars 2026. Comprenant : AU REZ-DE-CHAUSSEE - Séjour avec coin cuisine équipé A L'ETAGE : Palier, chambre (placard), salle de bains avec WC Valeur énergétique E. Chauffage individuel électrique Eau chaude individuelle électrique Eau froide collective collective avec répartition aux tantièmes Les informations sur les risques auxquels ce bien est e...
- Rent
- €500 per month
- Location
- 76100, Rouen
- Rental period
- -
- Verified landlord
- Yes
- Date
- 8 days ago
- Available
- Contact landlord
- Utilities
- Contact landlord
- Deposit
- Contact landlord
- Prepaid rent
- Contact landlord
Location