2 room apartment in Tours
-
Area
- 44 m²
-
Property type
- Apartment
-
Rooms
- 2 rooms
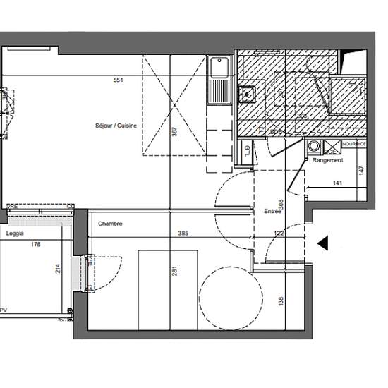
TOURS NORD - QUARTIER CHRIST ROI ! DISONIBLE DE SUITE! Nous vous proposons ce T2 de 44.90m² situé au troisième étage avec ascenseur d'une résidence neuve. Il se compose d'une entrée, d'une pièce de vie avec cuisine donnant sur une loggia, d'une pièce de rangement, d'une salle d'eau ainsi que d'une chambre. Entretien parties communes, entretien ascenseur, compris dans les provisions sur charges mensuelles et donnant lieu à une régularisation annuelle. Une place de parking complète le lot. Chauffage et eau chaude individuel gaz. Les honoraires...
- Rent
- €560 per month
- Location
- 37100, Tours
- Rental period
- -
- Verified landlord
- Yes
- Date
- 2 days ago
- Available
- Contact landlord
- Utilities
- Contact landlord
- Deposit
- Contact landlord
- Prepaid rent
- Contact landlord
Location