2 room apartment in Vic en bigorre
-
Area
- 51 m²
-
Property type
- Apartment
-
Rooms
- 2 rooms
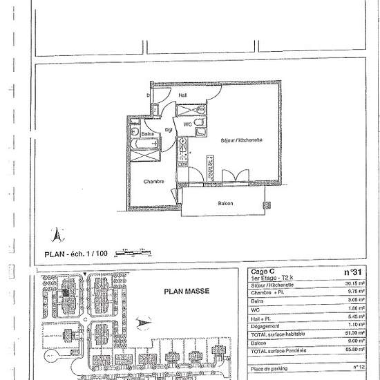
Au nord de VIC-EN-BIGORRE, à proximité du leclerc express et des commodités. A louer cet appartement T2 situé au 1er étage . Il se compose d'une entrée, d'un séjour avec sa cuisine ouverte (meubles hauts et bas, hotte, plaque de cuisson 2 feux, réfrigérateur) s'ouvrant sur un balcon de 9m², d'une chambre avec placard, d'une salle de bains aménagée ainsi qu'un WC séparé. Le logement bénéficie d'un parking aérien. Visite virtuelle sur notre site ELYADE (Réf: 15175) Louez un logement avec Elyade et bénéficiez gratuitement pendant 12 mois d'ALLO...
- Rent
- €457 per month
- Location
- 65500, Vic en bigorre
- Rental period
- -
- Verified landlord
- Yes
- Date
- Today
- Available
- Contact landlord
- Utilities
- Contact landlord
- Deposit
- Contact landlord
- Prepaid rent
- Contact landlord
Location