3 room apartment in Courbevoie
-
Area
- 64 m²
-
Property type
- Apartment
-
Rooms
- 3 rooms
Available now
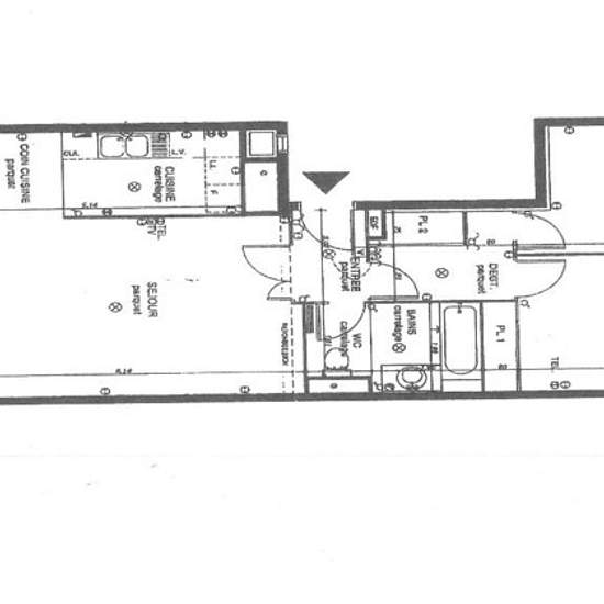
COURBEVOIE - rue Donatello Quartier FAUBOURG DE L'ARCHE. 3 PIÈCES DE DANS RÉSIDENCE DE 2003. comprenant : Entrée, cuisine aménagée, séjour de 27,80m² avec balcon de 8m² exposé SUD/OUEST, 2 chambres, salle de bains, toilettes, rangements, parking et cave en sous-sol. Proximité Transports: T2, métro ligne 1 et RER A LA DÉFENSE. CALME ET LUMINEUX. Chauffage et eau chaude COLLECTIFS. Disponible le 2 mars 2026 Frais d'actes de location : 966.90 euros TTC (Bail loi 89). Copropriété de 375 lots - dont 93 lots habitation. (). Charges annuelles : 224...
- Rent
- €1,668 per month
- Location
- 92400, Courbevoie
- Rental period
- -
- Verified landlord
- Yes
- Date
- 3 days ago
- Available
- Available now
- Utilities
- Contact landlord
- Deposit
- Contact landlord
- Prepaid rent
- Contact landlord
Location