3 room apartment in Fresnes

Area
59 m²
Property type
Apartment
Rooms
3 rooms

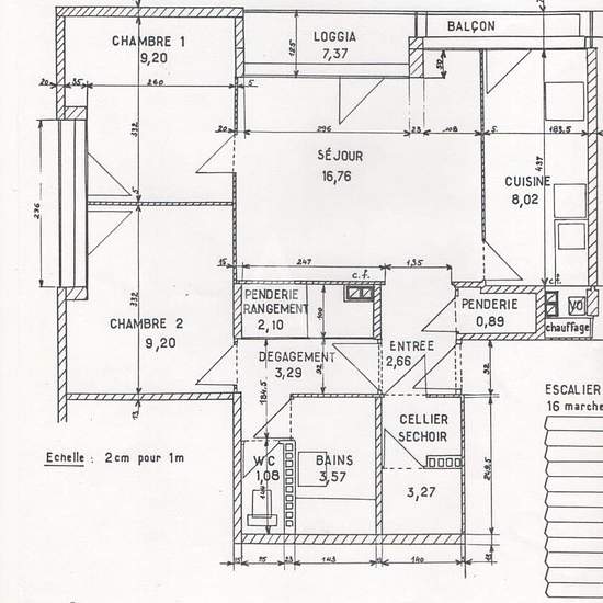
A louer, un joli 3 pièces MEUBLE de 59.75m² située allée des Fauvettes à Fresnes, comprenant une entrée avec placard, une salle d'eau, des WC séparés, deux chambres, une cuisine ouverte avec balcon et débarras séparé. Le logement comprend également une place de parking. Proche de commerces, à 8 minutes à pied du bus 187, à 3 minutes du bus 184. Disponible tout de suite.

Rent
€1,300 per month
Location
94260, Fresnes
Rental period
-
Verified landlord
Yes
Date
Today
Available
Contact landlord
Utilities
Contact landlord
Deposit
Contact landlord
Prepaid rent
Contact landlord
Location