3 room apartment in Marsillargues
-
Area
- 65 m²
-
Property type
- Apartment
-
Rooms
- 3 rooms
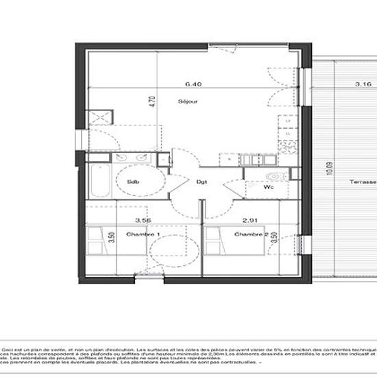
Marsillargues, entre Lunel et la Grande Motte, proche Saint Laurent d'Aigouze et accès autoroute. Quartier de la Laune, dans la résidence neuve Domaine d'Opale. Très bel appartement T3 neuf, qui sera livré fin janvier 2026. les photos visibles sur l'annonce sont celles de l'appartement encore en chantier, prises début janvier. Situé en 1er et dernier étage, sans ascenseur ; il offre 65,7 m2 habitables avec une grande terrasse de 32 m2. Deux parkings couverts et sécurisés en rez-de-chaussée. Séjour avec cuisine, ouverte et semi équipée de 32,...
- Rent
- €957 per month
- Location
- 34590, Marsillargues
- Rental period
- -
- Verified landlord
- Yes
- Date
- 10 days ago
- Available
- Contact landlord
- Utilities
- Contact landlord
- Deposit
- Contact landlord
- Prepaid rent
- Contact landlord
Location