3 room apartment in Paris 17
-
Area
- 90 m²
-
Property type
- Apartment
-
Rooms
- 3 rooms
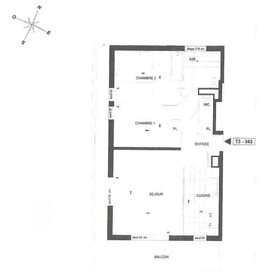
Rue Pierre Rebière. Beau 3 pièces de 66,16 m2 avec une terrasse de plain pied au calme et ensoleillée de 22,78 m2. Il est situé au 4e étage d'un immeuble de 2011 avec ascenseur. L'appartement est composé d'une entrée, un séjour, une cuisine équipée, deux chambres avec placards, une salle de bains et un toilette séparé. Entièrement meublé avec des équipements et meubles de qualités. Eau chaude et chauffage collectifs inclus dans les charges. Possibilité de louer une place de parking aux sous sol en supplément 150 €/mois . Loyer logement : 160...
- Rent
- €1,600 per month
- Location
- 75017, Paris 17
- Rental period
- -
- Verified landlord
- Yes
- Date
- Yesterday
- Available
- Contact landlord
- Utilities
- Contact landlord
- Deposit
- Contact landlord
- Prepaid rent
- Contact landlord
Location