3 room apartment in Toulouse
-
Area
- 62 m²
-
Property type
- Apartment
-
Rooms
- 3 rooms
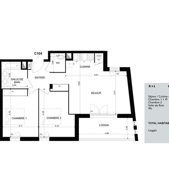
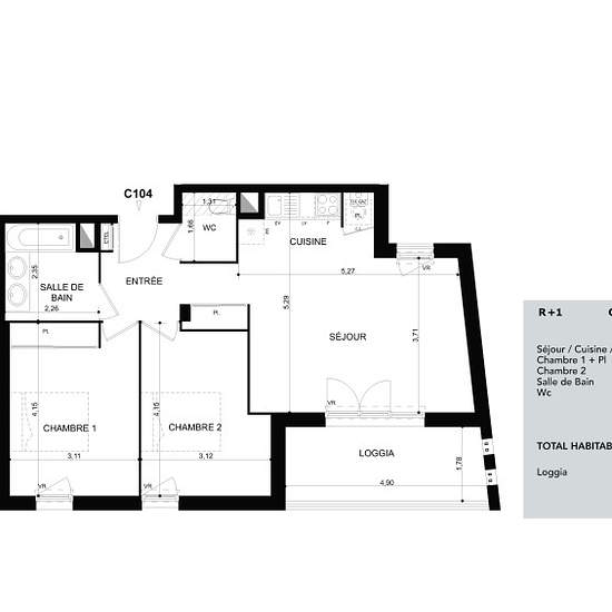
Résidence neuve, idéalement desservi par la ligne B du métro , le quartier Barrière de Paris est facile d'accès avec de nombreux atouts Soyez les premiers locataires de cet appartement T3 situé au 1er étage avec ascenseur. Il est composé d'une entrée, d'un séjour avec cuisine équipée (Meubles hauts et bas, un évier, plaque vitrocéramique 4 feux, une hotte), de deux chambres avec placard, d'une salle de bain, d'un WC séparé et d'une loggia de 8.58mm². Il bénéficie d'une place de parking en sous-sol.
- Rent
- €820 per month
- Location
- 31200, Toulouse
- Rental period
- -
- Verified landlord
- Yes
- Date
- 20 days ago
- Available
- Contact landlord
- Utilities
- €70
- Deposit
- €820
- Prepaid rent
- Contact landlord
Location