3 room apartment in Tourcoing
-
Area
- 82 m²
-
Property type
- Apartment
-
Rooms
- 3 rooms
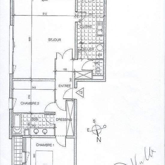
Annonce 395 Contacter IMMO DE FRANCE ; Marie PLATTEEURO au O6.73.74.42.57 A louer, un grand et bel appartement situé allée des confiseurs à Tourcoing; idéalement situé à 2 min a pied du tramway Ma Campagne Il vous offre ; un hall d'entrée, un grand séjour (placards) de 31.20m² donnant accès sur une terrasse de 9.7m², WC , un dégagement avec placard, une cuisine équipée ( éléments hauts et bas de rangement, plaques, hotte, four, lave vaisselle et réfrigérateur) 2 chambres (dont une avec accès balcon), une salle de bains (baignoire et meuble v...
- Rent
- €858 per month
- Location
- 59200, Tourcoing
- Rental period
- -
- Verified landlord
- Yes
- Date
- 22 days ago
- Available
- Contact landlord
- Utilities
- €115
- Deposit
- €858
- Prepaid rent
- Contact landlord
Location