3 room apartment in Tourcoing
-
Area
- 71 m²
-
Property type
- Apartment
-
Rooms
- 3 rooms
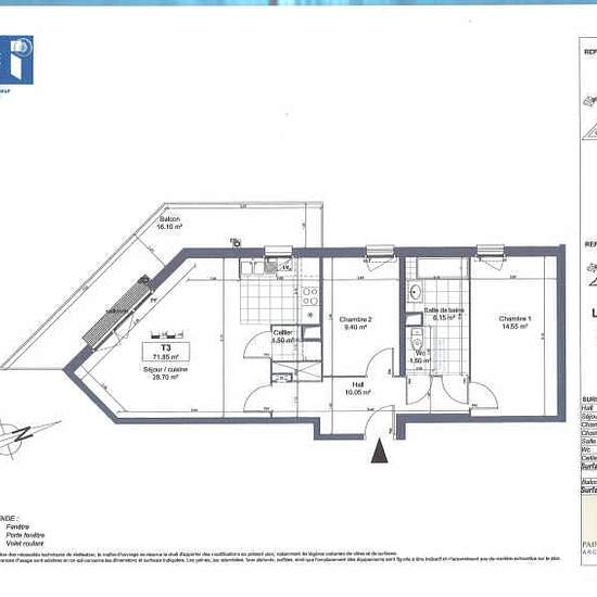
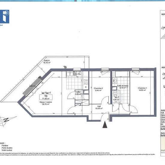
Annonce M2126- Contacter IMMO DE FRANCE Charlotte MASSE au O7.64.86.84.14 Résidence neuve, quai du halot, à proximité du métro. L'appt se compose d'un hall d'entrée, séjour avec accès à une grande terrasse de 16m² exposée ouest, cuisine équipée ouverte, deux chambres, salle de bains, WC. Disponible de suite
- Rent
- €863 per month
- Location
- 59200, Tourcoing
- Rental period
- -
- Verified landlord
- Yes
- Date
- Today
- Available
- Contact landlord
- Utilities
- €200
- Deposit
- €863
- Prepaid rent
- Contact landlord
Location