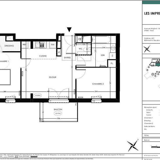
3 room apartment in Tours
-
Area
- 57 m²
-
Property type
- Apartment
-
Rooms
- 3 rooms
TOURS NORD / LIVRAISON NOVEMBRE 2025 Au pied des commerces et des transports, cette nouvelle résidence vous invite à profiter du meilleur de la ville. Voisine de la Place de la Tranchée, elle s'implante dans un quartier facile à vivre, doté de toutes les commodités et desservi par le tramway. Cette réalisation séduit par ses façades séquencées arborant un camaïeu d'enduits couleurs de Loire. Ouverte sur un agréable jardin intérieur, elle propose des appartements lumineux avec des doubles orientations ou des expositions sud offrant de belles ...
- Rent
- €780 per month
- Location
- 37100, Tours
- Rental period
- -
- Verified landlord
- Yes
- Date
- 18 days ago
- Available
- Contact landlord
- Utilities
- Contact landlord
- Deposit
- €710
- Prepaid rent
- Contact landlord
Location