3 room house in Villefranche sur saone

Area
60 m²
Property type
House
Rooms
3 rooms

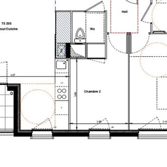
B203 VILLA SIENNA : T3 BAIGNE DE LUMIERE AU SEIN D'UNE RESIDENCE RECENTE DE STANDING A FAIBLE CONSOMMATION ENERGETIQUE. Il se compose d'une agréable pièce à vivre avec cuisine US semi-séparée équipée et meublée (plaques vitro, four, hotte, meubles hauts et bas) ouvrant sur un confortable extérieur. 2 chambres en sol parquet avec placard mural aménagé. Salle de bain avec meuble sous vasque et sèche-serviettes. CHAUFFAGE IND AU GAZ. VIDEOPHONE. PROCHE GARE SNCF ET CENTRE VILLE. Consommation d'énergie totale entre 280 EUR et 379 EUR par an (pri...

Rent
€776 per month
Rental period
-
Verified landlord
Yes
Date
Today
Available
Contact landlord
Utilities
€89
Deposit
€724
Prepaid rent
Contact landlord
Location