4 room apartment in Cagnes sur mer
-
Area
- 120 m²
-
Property type
- Apartment
-
Rooms
- 4 rooms
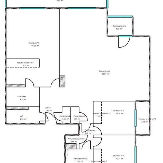
Découvrez ce spacieux appartement de 100,44 m² de 4 pièces meublé, situé au cœur de Les Bréguières, Combinant confort et modernité, ce bien est parfait pour une famille ou pour ceux recherchant un espace de vie généreux. Il se compose de trois chambres lumineuses avec placards, une salle de douche et une salle de bains, une loggia et deux balcons. Ce bien à est une opportunité rare qui allie élégance et fonctionnalité pour votre confort au quotidien Pour compléter ce bien, une cave et une place de parking. Les informations sur les risques au...
- Rent
- €1,730 per month
- Location
- 06800, Cagnes sur mer
- Rental period
- -
- Verified landlord
- Yes
- Date
- 2 days ago
- Available
- Contact landlord
- Utilities
- Contact landlord
- Deposit
- Contact landlord
- Prepaid rent
- Contact landlord
Location