4 room apartment in Ormoy
-
Area
- 70 m²
-
Property type
- Apartment
-
Rooms
- 4 rooms
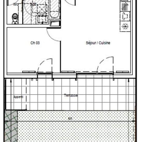
B05 ESSEINE : VENEZ VITE DECOUVRIR CE SUPERBE T4 TRAVERSANT, AU COEUR D'UNE PETITE RESIDENCE RECENTE DE STANDING A FAIBLE CONSOMMATION ENERGETIQUE, AU CALME. Confortable séjour et cuisine US équipée et aménagée (hotte, plaque vitro, four, meubles haut et bas) ouvrant sur un magnifique jardin de près de 60m2 et une terrasse de 16m2 expo sud/ouest, trois chambres en sol parquet dont deux avec placards aménagés et une grande de 14m2, SDB avec meuble sous vasque et sèche serviette, placard aménagé à l'entrée, un garage double et 2 places de park...
- Rent
- €975 per month
- Location
- 91540, Ormoy
- Rental period
- -
- Verified landlord
- Yes
- Date
- Today
- Available
- Contact landlord
- Utilities
- €175
- Deposit
- €1,030
- Prepaid rent
- Contact landlord
Location