1 pièces appartement dans Auzeville tolosane
-
Surface
- 20 m²
-
Type de propriété
- Appartement
-
Pièces
- 1 pièce
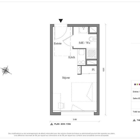
A SAISIR, studio dans résidence étudiante , à proximité de l'AGRI CAMPUS d'AUZEVILLE , de l'INRA, de l'ENSAT et à quelques minutes seulement du complexe universitaire de RANGUEIL. Visite virtuelle sur notre site ELYADE (Réf: 20843) Il est composé d'une entrée, séjour avec cuisine équipée (évier inox, plaque 2 feux, hotte, meubles hauts et bas, frigo top), salle d'eau aménagée avec WC, un cellier de 4m². Pour vous assurer le confort et la qualité de vie, vous trouverez à votre disposition une laverie, une salle commune , un boulodrome, et ...
- Louer
- 288 € par mois
- Durée de location
- -
- Propriétaire vérifié
- Oui
- Date
- Il y a 11 jours
- Disponible
- Contacter le propriétaire
- Services
- 65 €
- Dépôt de garantie
- 288 €
- Avance sur loyer
- Contacter le propriétaire
Emplacement