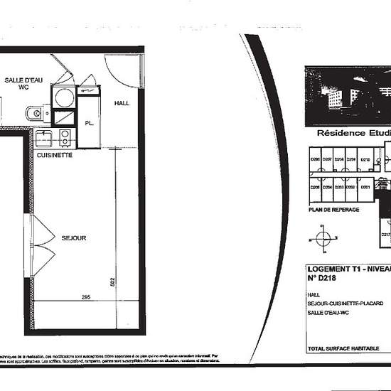
1 pièces appartement dans Caluire et cuire

Surface
25 m²
Type de propriété
Appartement
Pièces
1 pièce

Caluire et Cuire est une commune résidentielle très prisée de l'agglomération Lyonnaise avec notamment son cadre de vie très agréable. Conçues en harmonie avec un environnement vivant et dynamique, la résidence étudiante bénéficie des commerces de proximités, écoles et transports et de nombreux espaces verts. Découvrez un logement T1 : hall d'entrée, cuisine kitchenette équipée (évier, plaque 2 feux, meubles hauts et bas) et ouverte sur séjour, salle d'eau aménagée avec wc et ascenseur.

Louer
434 € par mois
Durée de location
-
Propriétaire vérifié
Oui
Date
Il y a 12 jours
Disponible
Contacter le propriétaire
Services
50 €
Dépôt de garantie
434 €
Avance sur loyer
Contacter le propriétaire
Emplacement