1 pièces appartement dans Cenon
-
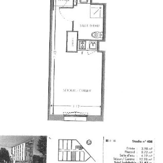
Surface
- 22 m²
-
Type de propriété
- Appartement
-
Pièces
- 1 pièce
Résidence étudiantes et jeunes Actifs. idéalement située à Cenon, à 5 minutes du centre-ville de Bordeaux et Fac Gestion & Histoire, au pied de l'arrêt de Tramway « Jean Jaurès » ligne A, commerces à proximité, Résidence moderne aux nombreux services : WIFI GRATUIT, salle commune, salle de sport avec machines de fitness, local vélo, kit vaisselle, vidéo surveillance. STUDIO MEUBLE : entrée, cuisine équipée avec table et 2 chaises (évier inox, plaque 2 feux, hotte, four micro-ondes, réfrigérateur table top, meubles hauts et bas), séjour avec...
- Louer
- 530 € par mois
- Ville
- 33150, Cenon
- Durée de location
- -
- Propriétaire vérifié
- Oui
- Date
- Il y a 5 jours
- Disponible
- Contacter le propriétaire
- Services
- 50 €
- Dépôt de garantie
- 1 060 €
- Avance sur loyer
- Contacter le propriétaire
Emplacement