1 pièces appartement dans Ermont
-
Surface
- 23 m²
-
Type de propriété
- Appartement
-
Pièces
- 1 pièce
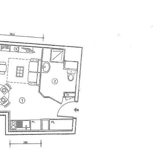
ERMONT-EAUBONNE - à proximité immédiate de la GARE d'ERMONT-EAUBONNE, dans une résidence sécurisée, beau studio lumineux comprenant une entrée avec placard, une pièce principale avec cuisine ouverte aménagée et partiellement équipée (plaques et réfrigérateur) et une salle d'eau avec WC. Un emplacement de stationnement souterrain sécurisé. CHAUFFAGE ET EAU CHAUDE COLLECTIFS!
- Louer
- 775 € par mois
- Ville
- 95120, Ermont
- Durée de location
- -
- Propriétaire vérifié
- Oui
- Date
- Il y a 12 jours
- Disponible
- Contacter le propriétaire
- Services
- Contacter le propriétaire
- Dépôt de garantie
- Contacter le propriétaire
- Avance sur loyer
- Contacter le propriétaire
Emplacement