
1 pièces appartement dans Le blanc mesnil
-
Surface
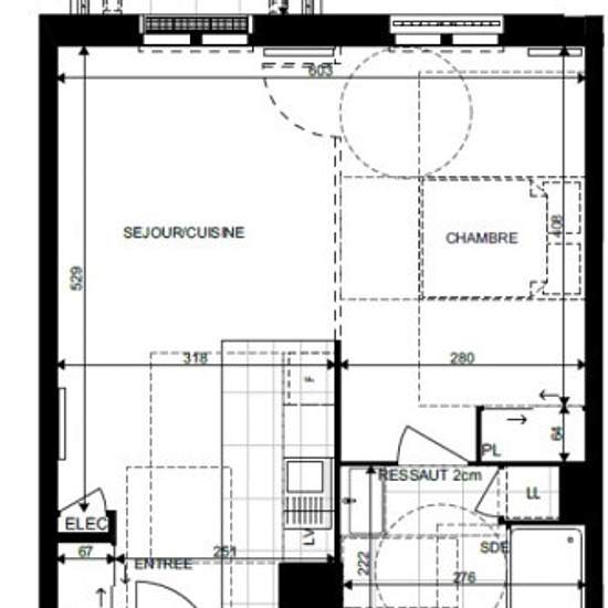
- 39 m²
-
Type de propriété
- Appartement
-
Pièces
- 1 pièce
202 L'ABSOLU : CHARMANT STUDIO AVEC BALCON ET BELLE LUMINOSITÉ Situé au deuxième étage d'une résidence récente et calme, ce beau studio de 39,96 m² bénéficie d'un balcon, idéal pour profiter d'un extérieur calme et sans vis-à-vis. LEURappartement propose une pièce principale lumineuse avec cuisine moderne entièrement équipée (plaques, four, hotte, meubles hauts et bas). Salle d'eau contemporaine avec meuble vasque et sèche-serviettes. Le parquet apporte chaleur et élégance à l'ensemble. Une place de parking privative en sous-sol complète ce ...
- Louer
- 780 € par mois
- Ville
- 93150, Le blanc mesnil
- Durée de location
- -
- Propriétaire vérifié
- Oui
- Date
- Hier
- Disponible
- Contacter le propriétaire
- Services
- 110 €
- Dépôt de garantie
- 740 €
- Avance sur loyer
- Contacter le propriétaire
Emplacement