1 pièces appartement dans Montpellier
-
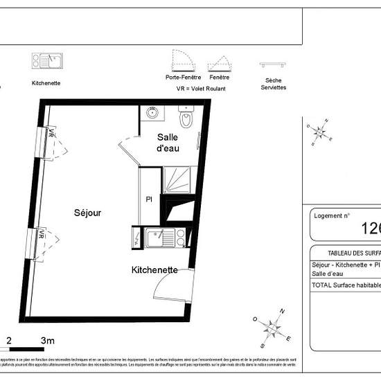
Surface
- 26 m²
-
Type de propriété
- Appartement
-
Pièces
- 1 pièce
Résidence ETUDIANTE-Secteur Près d'Arènes!!!!! Visite virtuelle sur notre site ELYADE (Réf:21657) Proche de l'arrêt de la ligne 4 du tramway ainsi que des commerces, nous vous proposons un agréable T1 composé d'une entrée, d'un séjour avec cuisine équipée (évier inox, plaque 2 feux, hotte, meubles hauts et bas, frigo top), d'une salle d'eau aménagée avec WC. *Eau compris dans les charges*
- Louer
- 400 € par mois
- Ville
- 34000, Montpellier
- Durée de location
- -
- Propriétaire vérifié
- Oui
- Date
- Il y a 3 jours
- Disponible
- Contacter le propriétaire
- Services
- 100 €
- Dépôt de garantie
- 400 €
- Avance sur loyer
- Contacter le propriétaire
Emplacement