1 pièces appartement dans Nimes
-
Surface
- 18 m²
-
Type de propriété
- Appartement
-
Pièces
- 1 pièce
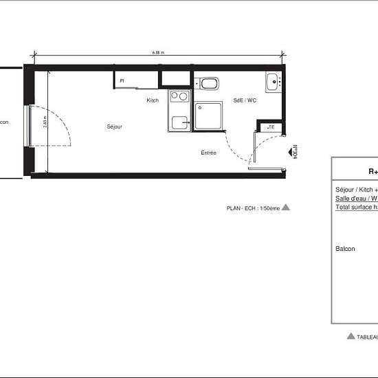
Studio, non meublé, dans notre nouvelle résidence proche du site Hoche de l'Université de Nîmes, de l'Ecole supérieure du professorat et du centre hospitalier des Fransiscains, et profitez de ses multiples services (locaux vélos, laverie, salle de coworking avec wifi, conciergerie*). Il est composé d'une entrée, d'une pièce de vie avec cuisine équipée (évier inox, plaque 2 feux, hotte, meubles hauts et bas,frigo table top), d'une salle d'eau aménagée avec WC, d'un balcon de 4.01m². Il bénéficie d'une place de parking couverte. Retrouvez à pr...
- Louer
- 369 € par mois
- Ville
- 30000, Nimes
- Durée de location
- -
- Propriétaire vérifié
- Oui
- Date
- Il y a 22 jours
- Disponible
- Contacter le propriétaire
- Services
- Contacter le propriétaire
- Dépôt de garantie
- Contacter le propriétaire
- Avance sur loyer
- Contacter le propriétaire
Emplacement