1 pièces appartement dans Nimes

Surface
19 m²
Type de propriété
Appartement
Pièces
1 pièce

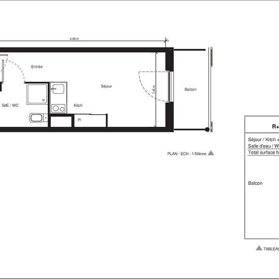
Venez réserver votre futur studio, non meublé, dans notre résidence, proche du site Hoche de l'Université de Nîmes, de l'Ecole supérieure du professorat et du centre hospitalier des Fransiscains, et profitez de ses multiples services (locaux vélos, laverie,conciergerie*). ll est composé d'une entrée, d'une pièce de vie avec cuisine équipée (évier inox, plaque 2 feux, hotte, meubles hauts et bas,frigo table top,), d'une salle d'eau aménagée avec WC, d'un balcon de 3.89m². Retrouvez à proximité de la résidence, l'arrêt de bus "Ste Baudile" d...

Louer
256 € par mois
Ville
30000, Nimes
Durée de location
-
Propriétaire vérifié
Oui
Date
Aujourd'hui
Disponible
Contacter le propriétaire
Services
59 €
Dépôt de garantie
256 €
Avance sur loyer
Contacter le propriétaire
Emplacement